Tender Details

BID DESCRIPTION APPOINTMENT OF A SERVICE PROVIDER FOR THE ONCE OFF SUPPLY, DELIVERY, ASSEMBLING AND INSTALLATION OF OFFICE FURNITURE TO THE COMPETITION COMMISSION OFFICES – BLOCK G

Tender Number:

BID0000013\2025-2026

Client:

Competition Commission

Region:

Gauteng

Industry:

Other

Title:

BID DESCRIPTION APPOINTMENT OF A SERVICE PROVIDER FOR THE ONCE OFF SUPPLY, DELIVERY, ASSEMBLING AND INSTALLATION OF OFFICE FURNITURE TO THE COMPETITION COMMISSION OFFICES – BLOCK G

Closing Date:

13/10/2025 11:00

Site Inspection Date:

25/09/2025 11:00

Tender Description:

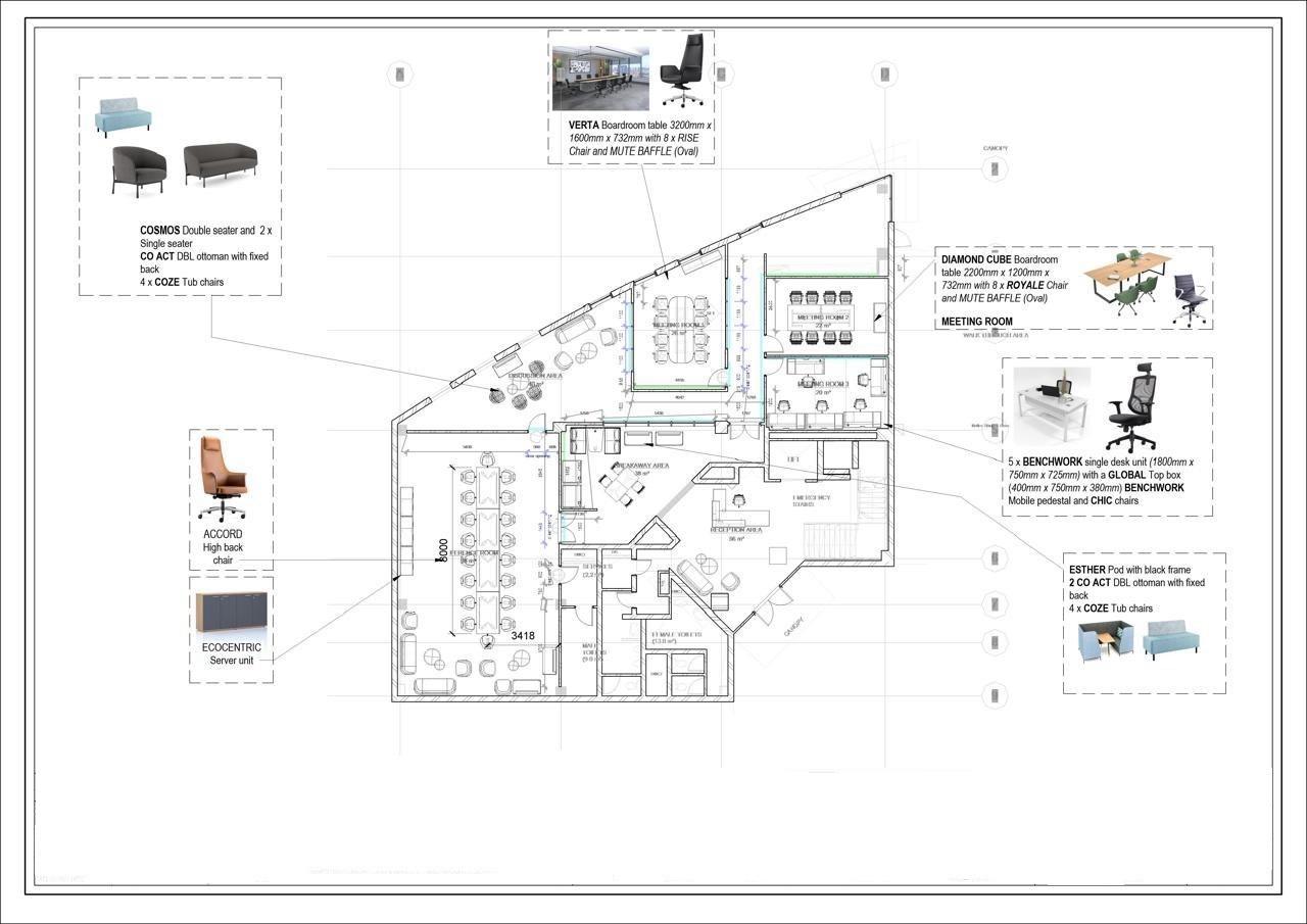
Details Tender Number BID0000013\2025-2026 Organ Of State Competition Commission Tender Type Request for Bid(Open-Tender) Province Gauteng Date Published 22 September 2025 Closing Date 13 October 2025 11 00 Place where goods, works or services are required 77 MEINTJIES STREET, THE DTI CAMPUS, BLOCK C-SUNNYSIDE-PRETORIA-0002 Special Conditions N/A ENQUIRIES Contact Person SCM DEPARTMENT Email Tenders@compcom.co.za Telephone number 012-394-3200 FAX Number N/A BRIEFING SESSION Is there a briefing session? Yes Is it compulsory? Yes Briefing Date and Time 25 September 2025 11 00 Briefing Venue https //teams.microsoft.com/l/meetup-join/19%3ameeting_YTcxOGMwYzUtOWQ3Ni00OGYxLThkMjYtODA3NDNiODYyZ TENDER DOCUMENTS A2-SECOND FLOOR FURNITURE LAYOUT.jpg Date Uploaded 2025-09-22 SBD 1 INVITATION TO BID OFFICE FURNITURE BID0000013-2025-2026.pdf Date Uploaded 2025-09-22 SBD 3.1 OFFICE FURNITURE.pdf Date Uploaded 2025-09-22 A1-GROUND FLOOR FURNITURE LAYOUT.jpg Date Uploaded 2025-09-22 A4-NA-25-0604 WAITING AREA.jpg Date Uploaded 2025-09-22 BID ADVERT BID0000013-2526- OFFICE FURNITURE.pdf Date Uploaded 2025-09-22 SBD 6.1 OFFICE FURNITURE.pdf Date Uploaded 2025-09-22 GENERAL CONDITIONS OF CONTRACT- OFFICE FURNITURE.pdf Date Uploaded 2025-09-22 BID00000013- 2025-2026 ANNEXURE B REFERENCE TEMPLATE OFFICE FURNITURE.pdf Date Uploaded 2025-09-22 SBD 4 OFFICE FURNITURE.pdf Date Uploaded 2025-09-22 A4-NA-25-0596 MEETING ROOM 2.jpeg Date Uploaded 2025-09-22 A4-NA-25-0598 MEETING ROOM 3.jpg Date Uploaded 2025-09-22 TOR BID0000013-2025-2026 OFFICE FURNITURE BLOCK G.pdf Date Uploaded 2025-09-22 A4-NA-25-0603 WAITING AREA.jpg Date Uploaded 2025-09-22 A4-NA-25-0596 MEETING ROOM 1.jpg Date Uploaded 2025-09-22 A4-NA-25-0605 EXEC OFFICE.jpg Date Uploaded 2025-09-22 SBD3.1- A-BOM-Block G furniture spec_Itemised.pdf Date Uploaded 2025-09-22 A3-THIRD FLOOR FURNITURE LAYOUT.jpg Date Uploaded 2025-09-22